C-EM-0100M je univerzální 1fázový elektroměr s možností obousměrného měření a rozšiřujícího vstupu, vhodný pro integraci do systémů s CIB komunikací. Díky bohaté paletě měřených veličin (U, I, P, Q, S, účiník, energie, frekvence) a podpoře externího proudového transformátoru umožňuje detailní sledování spotřeby i výroby energie v domácích i průmyslových aplikacích.
Kromě měření energie disponuje ještě 1 univerzálním AI/DI vstupem, který lze využít jako:
-
binární bezpotenciálový vstup (např. tlačítko),
-
nebo analogový vstup (např. odporová čidla teploty Pt1000, Ni1000, NTC aj.)
Základní měřené veličiny
Modul měří a poskytuje tyto hodnoty (podrobnější informace jsou k dispozici v základní dokumentaci modulu):
-
Proud (Irms): 0–65,5 A
-
Napětí (Urms): 0–655 V
-
Činný výkon (Pmean): –32 768 až +32 767 W
-
Jalový výkon (Qmean): –32 768 až +32 767 var
-
Zdánlivý výkon (Smean): 0–32 767 VA
-
Účiník (cos φ): –1 až +1
-
Fázový posun: –180° až +180°
-
Síťová frekvence: 45–65 Hz
Měření je doplněno o registry energií (činná/jalová, odběr/dodávka). Hodnoty se poskytují v počtu pulsů s rozlišením 0,1 pulsu, přepočet na kWh/kvarh se provádí podle nastaveného parametru „Počet pulsů na 1 kWh“
Konfigurace a datová struktura
-
Konfigurace probíhá v nástroji I/O Configurator (nikoliv ve starším Manažeru projektu).
-
Data jsou rozdělena do 4 skupin zařízení:
-
DI – binární vstup,
-
STAT + AI – stav a hodnota analogového vstupu,
-
P/U/I – aktuální výkon, napětí, proud,
-
ANYREG – přístup do R/W registrů měřicí části
.
-
Mechanické provedení
-
Kompaktní provedení: rozvaděčový modul, šířka 1,5M.
-
Montáž: na DIN lištu.
-
Indikace:
-
RUN LED (stav komunikace),
-
LED IN/OUT (vizualizace spotřeby/dodávky energie),
-
LED DI1 (stav binárního vstupu)
.
-

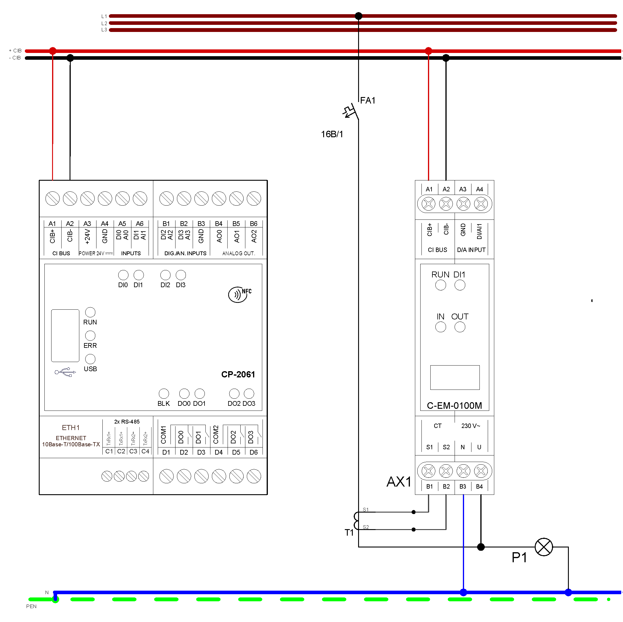
Obr. 1 Základní příklad zapojení elektroměru C-EM-0100M

Obr. 2 Vývody a orientace proudového trasformátoru
Proudový transformátor elektroměru C-EM-0100M
Modul je standardně dodáván s proudovým transformátorem s převodem 2000:1 a měřicím rozsahem do 50 A AC.
|
Převodní poměr |
2000:1 |
|
Měřicí rozsah |
0 ÷ 50 A AC |
|
Maximální proud |
80 A AC |
|
Provozní frekvence |
50 Hz, 60 Hz |
|
Průměr otvoru pro měřený vodič |
8,4 mm |
|
Délka přívodních vodičů |
160 mm |
| Stupeň odolnosti proti hoření |
UL94-Vo |
|
El. pevnost transformátoru |
3kV/50 Hz/1min |
|
Provozní rozsah teplot |
-40ºC ÷ +85ºC |

Obr. 2 Proudový transformátor
